Epping Forest House

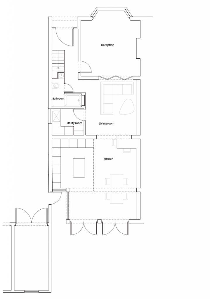
The residents at Epping Forest House approached us intending to extend both out the rear of the property along with the loft to not only add an additional bedroom but to also make use of the substantial amount of potential floor space available to them due to a large garden. The property itself is situated in Woodford Green, London and is a typical late 1930’s suburban semi-detached house and in its current state, the property suffers from a boxy layout which hinders the flow of the ground floor especially. Our aim is to open up the floor plan to allow for a more open living space while still being flexible for the large growing family.

The rear of the property is south facing, so making use of as much natural light in what is currently quite a dark ground floor is important. We will aim to use as much of the allowed height as possible to give the kitchen/dining area a real sense of space. This, combined with a carefully selected material palette, will give the open plan downstairs a warm but open feel while still modernising the scheme to contemporary standards thus creating a large space for the family to relax in, to create and entertain.

Epping Forest House

Epping Forest House

hollywood way render 1

No Comments

Sorry, the comment form is closed at this time.